Produit discontinué
ALP LM 750
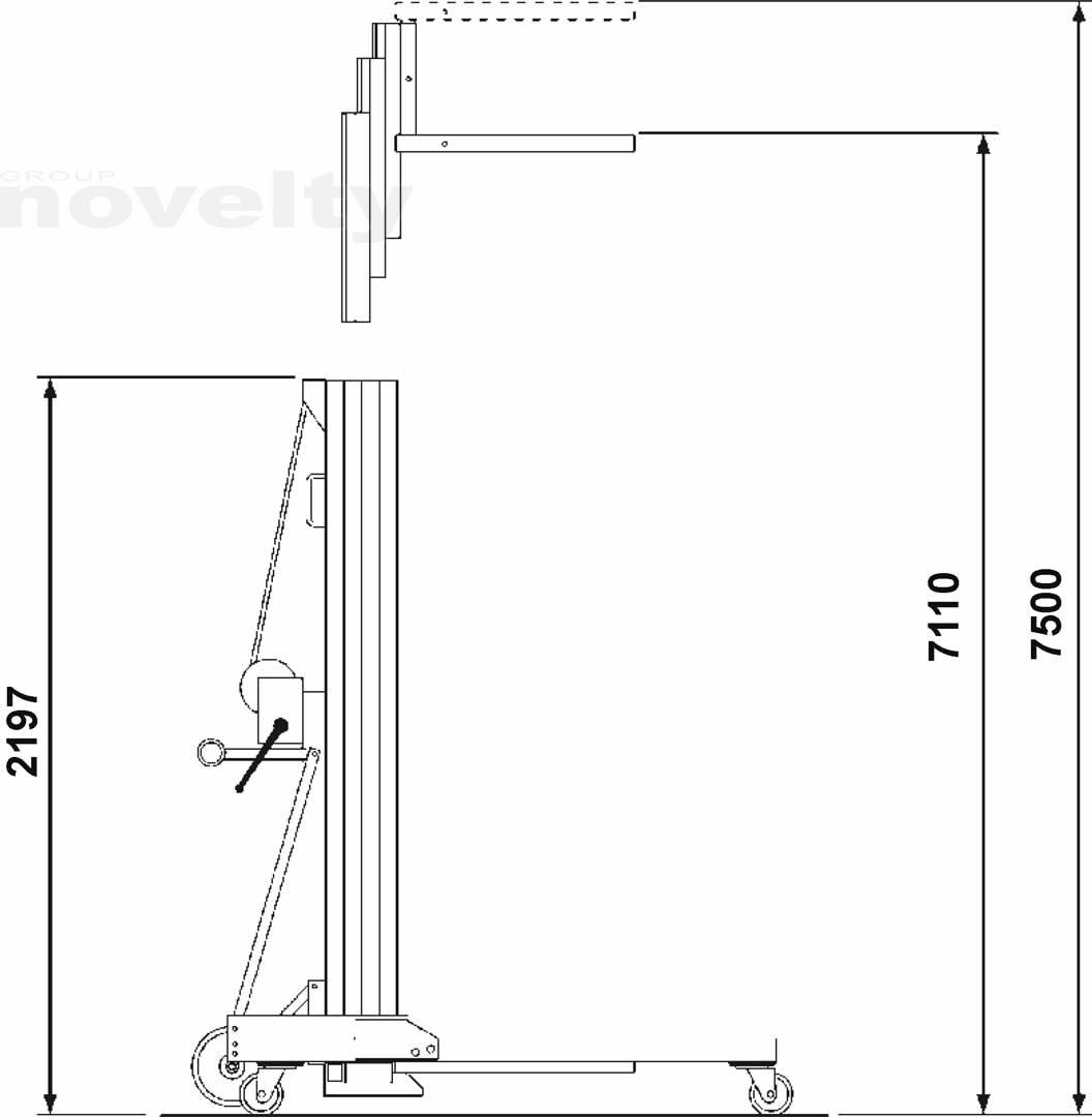
Pied de levage à treuil, hauteur maxi 7,5m, charge maxi 300kg






Descriptions détaillées
- base en acier galvanisé
- profilé de mats breveté en aluminium
- stabilisateurs et porte-stabilisateurs
- grandes roulettes pivotantes avec frein
- dimensions de transport avantageuses garantissant un passage dans les ouvertures des portes standards
- sélection variée de treuils
Informations
- Référence : LM 750
- Télécharger nos catalogues PDF















